АЛУМИНИЕВА СИСТЕМА NOVOFIRE
СИСТЕМИ ЗА ВРАТИ И СТЕНИ
Системите от алуминиеви рамкови профили NovoFire® са идеалното решение за съвременното строителство. Със своята елегантна повърхност, непреходен дизайн и многобройни варианти, те предлагат практически неограничени възможности за амбициозните архитекти и проектанти в намирането на остъклени пожарозащитни и димозащитни решения за интериора на сградата. Еднокрилите и двукрилите врати с фиксове и / или странични елементи могат да бъдат комбинирани помежду си.
Системите NovoFire® са стабилни благодарение на дебелината на профилната стена – 4 мм и изключително компактни, заради единичната пожароустойчива сърцевина, която е захваната към центъра на профила. Така се получава уеднаквена видима ширина от 150 мм за всички модели. След многобройни заявки, към гамата е прибавено покритието от анодизиран алуминий, което наподобява това от неръждаема стомана.
За модерното строителство
Системите от алуминиеви рамкови профили NovoFire® са идеалното решение за съвременното строите. Системите NovoFire® са стабилни благодарение на дебелината на профилната стена – 4 мм и изключително компактни, заради единичната пожароустойчива сърцевина, която е захваната към центъра на профила. Така се получава уеднаквена видима ширина от 150 мм за всички модели.
Висока функционалност
Вратите от алуминиеви рамкови профили се предлагат с пожароустойчивост (до EI2 90), димозащита, с устойчивост на взлом (до RC 3) и многоцелеви - за унифициран вид на вратите в цялата сграда. Системите Novoferm предлагат цялостна визия и възможност за комбинации от еднокрили и двукрили врати, странични и горни фиксове.
Множество предимства при монтажа
Серията врати предлага многобройни предимства, както и бърз и чист монтаж. Например, пожарозащитната пяна Novoferm може да се използва за запълване на профили и рамки в метални конструкции и конструкции от гипсокартон много по-бързо и чисто. Обичайните първоначални познания за монтаж на пожароустойчиви врати са напълно достатъчни.
Сравнение и характеристики на вратите
Сравнение на врати с алуминиеви рамкови профили
| Вид врата | Сертификат за изпитване | Материал на профила- | T30 | T90 | Димозащита | RC 2 | RC 3 | Топлоизолация |
| NovoFire RS | P-120003623-10 | Алуминий |
|
| • |
|
|
|
| NovoFire T30 | Z-6.20-1845 | Алуминий | • |
| • | • | • |
|
| NovoFire F30 | Z-19.14-1769 | Алуминий | • |
|
|
|
|
|
| NovoFire Thermo EI30 | Декларация за експлоатационни характеристики | Алуминий | • |
| • |
|
| • |
| NovoFire Glass 30 F30 | Z-19.14-2393 | Алуминий | • |
|
|
|
|
|
| NovoFire T90 | Z-6.20-1836 | Алуминий |
| • | • |
|
|
|
| NovoFire F90 | Z-19.14-1771 | Алуминий |
| • |
|
|
|
|
| Външна алуминиева врата | - | Алуминий |
|
|
| • | • | • |
Акценти на вратите от алуминиеви рамкови профили
ОПИСАНИЕ НА СИСТЕМАТА
Конструкция на вратата, изработена от еднокамерни кухи алуминиеви профили. Вратата е изпитана като врата с димозащита с автоматичен падащ подов праг, в съответствие с DIN 18095.. Видимата ширина на рамката и крилото: 150 мм, височина на основата: 98 - 238 мм, дълбочина на монтаж: 74 мм (T30 ) или 90 мм (T90). Пасивното крило на двукрилата врата не трябва да бъде с размер по-малък от 500 мм. Елементите са фабрично сглобени за монтаж.
ОБКОВ
Заключващият механизъм е сглобен фабрично и включва: брава , дръжка или дръжка-топка с овални розетни шилдове, изработени от алуминий, неръждаема стомана или пластмаса. Пасивното крило се фиксира с прибиращо се резе в горната част. Като алтернатива е възможна и функция „антипаник“, която отговаря на EN 179 или EN 1125. Автоматитите за самозатваряне, разположени в горната част на вратата са в съответствие с EN 1154, интегрираните системи за затваряне на врати за RS и T30, както и задвижванията за летящи врати са в съответствие с DIN 18263 / DIN 18650.
ПАНТИ
Две 3-D регулируеми двусъставни алуминиеви винтови панти за всяко крило. За вратите с електрическо задвижване препоръчваме да използвате три броя панти. Също така, като опция са налични пружинни панти, вместо обикновените с винт.
ОСТЪКЛЕНИЕ
Безопасно стъкло VSG или ESG. Опции за остъкляване и запълване на панелите, профили с едностранно стъкло и стъклодържачи от другата страна на пантите, стъклени преградни панели с EPDM уплътнения.
ФИКСИРАНО ОСТЪКЛЕНИЕ
Свързване в една равнина с вратата, възможно е и самостоятелно, по избор със скосяване или Т-образно свързване. Профилите на рамката трябва да се движат без прекъсване по цялата височина на пожароустойчивото остъкление.
ПОВЪРХНОСТИ
- Стандарт:
Прахово боядисване, защитно покритие, гланц (RAL Classic по ваш избор) - Опция:
Анодиран алуминий, с визия на неръждаема стомана, прахово боядисан в дървесен декор, цветове NCS
Цветове и допълнителни опции
ВРАТИТЕ С РАМКОВИ ПРОФИЛИ СЪС СПЕЦИАЛНИ ХАРАКТЕРИСТИКИ ПРАВЯТ ЗАЩИТАТА ОТ ДИМ И ПОЖАР ПО-АТРАКТИВНА
Изпитаната защита от дим и огън е в основата, но специалните характеристики оформят дизайна. Точно това прави NovoFire® една серия с много възможности. Независимо дали става въпрос за дървесен декор и усещане или за тонирано стъкло в различни цветове, системата може да бъде интегрирана във всяка архитектурна концепция с индивидуална конфигурация.
ОБКОВ
Многоточково заключване, подготвено за патрон, лостова дръжка или сменяем обков с овална розетка от алуминий, неръждаема стомана или PVC-U. Стандартно пасивното крило се държи от горния автомат, алтернативно е възможна антипаник функция в съответствие с DIN EN 179 или DIN EN 1125
ПРОЕКТИРАНЕ С ИНОВАТИВНИ ЕЛЕМЕНТИ
Вратите с рамкови профили на Novofire® предлагат на проектантите и собствениците на сгради най-добрите условия за умело съчетаване на форми, повърхности и материали. Например дървесния декор е почти неразличим от истинското дърво, благодарение на текстурираната си повърхност. Други декори с метална визия и тонирани стъкла предоставят възможност за силно индивидуализирани решения в спектъра между техническо-студеното и натурално-благородното.
ПАНТИ
По две 2D регулируеми 3-съставни ролкови панти на крило за височина на вратата от 2.50 m. За вратите с електрическо задвижване препоръчваме да използвате три броя панти. Възможни са и други варианти на панти, като например винтови панти (3D регулируеми).
АТРАКТИВНИ ПОВЪРХНОСТИ
- Анодизиран алуминий, визия на неръждаема стомана или прахово покритие (RAL Classic по ваш избор)
- Прахово боядисана стомана, грундирана по RAL 9002 (сиво-бяло) или по желание боядисана (RAL Classic по ваш избор)
- Декоративна визия и текстура на естествени материали като дърво
Детайли за система от алуминиеви профили за врати и стени NovoFire
ВРАТИ С РАМКОВИ ПРОФИЛИ NOVOFIRE®
ХАРАКТЕРИСТИКИ
[1] Фалцът на вратата е облицован от три страни с гладки и черни огнезащитни уплътнения с PVC покритие.
[2] Врати за монтаж на равно със стената, при високи естетически стандарти с RS, T30 (EI 30) и T90 (EI 90)
[3] Дебелина на стената 4 мм за изключително висока стабилност
[4] Само една пожароустойчива сърцевина
[5] Външните камери са свободни и могат да се използват за закрепване на допълнителни елементи.
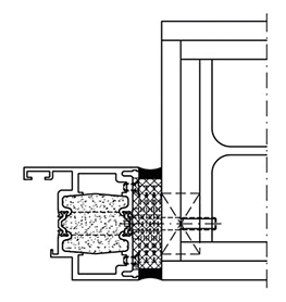
РАЗРЕЗ
Независимо дали става въпрос за звукоизолация, или за пожароустойчивост T 30 или T 90:
Вратата от рамкови профили NovoFire® се предлага с едни и същи покрития, за да изглежда добре в цялата сграда.
ВИДОВЕ ПАНТИ
Външни алуминиеви врати
ВЪНШНИ АЛУМИНИЕВИ ВРАТИ
Външната алуминиева врата представлява стабилна профилна конструкция за високо топлоизолирани системи врати, за странични и задни входове в промишлени, търговски и административни сгради. По този начин тя покрива и второстепенни зони и допълва по благоприятен начин останалата част от гамата врати Novoferm. Външната врата впечатлява и с добрите си технически характеристики, изключителните стойности на Uƒ и многобройните възможности за дизайн.
ОБКОВ
Подходящи за монтаж на всички налични в търговската мрежа обкови. Предлагат се няколко варианта на панти за врати - от здрави винтови панти до напълно скрити панти, както и ролкови панти от алуминий или неръждаема стомана.
КОНСТРУКЦИЯ
Стабилна комбинация от рамка и крило с 2 мм дебелина на стената. Профилите на крилото могат да бъдат оборудвани с плъзгащи се изолационни планки за намаляване на биметалния ефект.
ПРАГ НА ВРАТАТА
Вариантът на безбариерен праг с монтажна височина 19 мм и скрито закрепване, осигурява визуално плавен преход от външната към вътрешната страна и може да се използва в стари и нови сгради, благодарение на специалния профил на основата.
ПРОФИЛНИ РАЗМЕРИ
Посочените по-долу профили и размери на профилите са минимални изисквания. Възможно е да бъдат използвани усилени профили по конструктивни причини.
Дълбочина на профила:
- Рамка, стъклодържатели, ригел 75 mm
- Рамка на крилото (врата) 75 mm
Ширина на лицевата страна на профила, врата: ( Стандартно за пожароустойчивата система NovoFire®)
- Рамка на вратата, вкл. крило на вратата 149 мм
- Цокъл на вратата 150 mm
Външни алуминиеви врати Thermo - детайли
NOVOFIRE® THERMO АЛУМИНИЕВА / ПОЖАРОУСТОЙЧИВА ВРАТА ЗА ВЪНШНА УПОТРЕБА
Системата се базира на стабилни кухи профили NovoFire® с дебелина на стената 4 мм, с конструктивна дълбочина 90 мм, подходящи и за големи размери на светлия проход. Времето за пожароустойчивост от 30 минути и високите топлоизолационни свойства на конструкцията се постигат чрез поставяне на пожарозащитен изолиращ материал, разработен от Novoferm.
Индивидуалните изисквания за безопасност на сградата могат да се реализират чрез комбиниране на компонентите на оборудването.
ОБКОВ
Максимална гъвкавост и съвместимост на обков и аксесоари. Компонентите могат да се избират според приложението. Здравите двукомпонентни винтови панти се предлагат в различни цветове: E6/EV1 = стандарт, RAL по ваш избор и неръждаема стомана.
КОНСТРУКЦИЯ
Стабилна комбинация от рамка и крило с 4 мм дебелина на стената. Висока изолация в случай на пожар EI130 C5.
ПРАГ НА ВРАТАТА
Вариантът на безбариерен праг с монтажна височина 19 мм и скрито закрепване, осигурява визуално плавен преход от външната към вътрешната страна и може да се използва в стари и нови сгради, благодарение на специалния профил на основата.
ПРОФИЛНИ РАЗМЕРИ
Профилните размери са същите като на пожароустойчивата и димозащитна система NovoFire.
- Дълбочина на профилната конструкция: 90 mm
- Широчина на челото на профила: 150 mm
- Рамка на вратата, вкл. крило на вратата
- Цокъл на вратата: 98 mm
Акценти
- Димоуплътнение съгласно DIN 18095
- Клас на пожароустойчивост T30 (EI2 30) / F30 или T90 (EI2 90) / F90 съгласно DIN 4102
- Устойчивост на взлом в съответствие с DIN EN V1627 за врати T30 (EI2 30) от класове RC1 (WK1) или RC2 (WK2), по избор и RC3 (WK3)
- Еднокрилите или двукрилите димо-/пожароустойчиви врати могат да се комбинират с фиксирани елементи с всяко разположение на разделящите профили, с височина до 4,0 м (F90) или 5,0 м (F30).
- Може да се монтира горен автомат за врата, електрически насрещник или дори антипаник функция, в съответствие с DIN EN 179 или DIN EN 1125.
- Еднородна визия на всички системи и комбинации от врати, странични и горни фиксове.
- Касата и профилът на вратата са в една равнина
- Многобройни възможни приложения и максимамална свобода на проектиране
Технически данни и детайли
Технически данни за димозащитни врати с рамкови профили
| Клас устойчивост | Димозащита | |||||
| Тип | NovoFire® Alu | NovoFire® | NovoFire® | NovoFire® RS-врата | ||
| Елементи | ||||||
| Наклони | - | - | - | • | ||
| Арки | - | - | - | - | ||
| Вдлъбнатини | - | - | - | • | ||
| Ъгли | - | - | - | - | ||
| Разширения | • | • | • | • | ||
| Размери |
|
|
| |||
| Зидарски отвор | ширина min. - max. | 624 - 1834* | няма спецификации | 1500 - 3270* | неограничен | |
височина min. - max. | 1750 - 3135* | няма спецификации | 1755 - 3135* | max. 5015 ¹)²) | ||
| Външен размер на рамката | ширина min. - max. | 604 - 1804* | 621 - 1821* | 1470 - 3240* | неограничен | |
височина min. - max. | 1740 - 3120* | 1749 - 3129* | 1740 - 3120* | max. 5000 ¹)²) | ||
| Размер на стъклото | ширина min. - max. | 454 - 1414 | 454 - 1414 | 1320 - 2850 | – | |
височина min. - max. | 1665 - 2925 | 1665 - 2925 | 1665 - 2925 | – | ||
| Крило |
|
|
| |||
| Дълбочина на монтаж | 74 | 74 | 74 | 74 | ||
| Изглед | 150 | 159 | 150 | 75 | ||
| Височина на цокъла | 98 - 238 | 98 - 238 | 98 - 238 | 75 - 225 | ||
| Профил на щурца, отделящ вратата от фикса | 98 | 98 | 98 | 98 | ||
| Залепен стъклодържач | 20 - 140 | 20 - 140 | 20 - 140 | 20 - 140 | ||
| Стена | ||||||
| Зидария | ≥ 115 | ≥ 115 | ≥ 115 | ≥ 115 | ||
| Бетон | ≥ 100 | ≥ 100 | ≥ 100 | ≥ 100 | ||
| Газобетонни блокове | ≥ 175 | ≥ 175 | ≥ 175 | ≥ 175 | ||
| Газобетонни плочи | ≥ 150 | ≥ 150 | ≥ 150 | ≥ 150 | ||
| Щендерни стени от ригели или стоманени щендери | ≥ 95 | ≥ 95 | ≥ 95 | ≥ 95 | ||
| Щендерни стени от ригели или дървени щендери |
|
|
|
| ||
| Облицован и необлицован стоманен компонент | • | • | • | • | ||
| Облицован дървен компонент | • | • | • | • | ||
| Комбинация врати / остъкление | • | • | • | • | ||
| Z-каса | - | - | - | - | ||
| Пълнеж | ||||||
| Дълбочина на монтажа | 1302 x 2782 | 1302 x 2782 | 1302 x 2782 | • | ||
| Панел | • | • | • | • | ||
| Стъкло / панел | • | • | • | • | ||
| Стъклена вложка | Мокро стъкло | • | • | • | • | |
Сухо стъкло | • | • | • | • | ||
| Варианти на дизайна | ||||||
| с горен и страничен фикс | • | • | • | • | ||
| с горен фикс | • | • | • | • | ||
| със страничен фикс | • | • | • | • | ||
| Димозащита съгласно DIN 18095 и DIN EN 1634 - част 3 | • | • | • | • | ||
| Максимална звукоизолация Rw,P (Rw,R) | 42 (37) | - | 42 (37) | - | ||
| Устойчивост на взлом ³) | - | - | - | - | ||
| Топлопроводимост Uf | - | - | - | - | ||
| Сертификат за изпитване | P-120003623-10 | P-120003623-10 | P-120003623-10 | P-120003623-10 | ||
| Изпитан в съответствие с | DIN 4102 и DIN EN 1634 | |||||
| • възможно – не е възможно * вкл. 120 мм по-широка рамка на вратата от лявата, дясната страна и отгоре ¹) Спрямо изискванията за структурна стабилност ²) Монтаж на врата RS-1 или врата RS-2 във фиксираното остъкление: Препоръчваме укрепваща тръба от лявата и дясната страна на рамковия профил на фиксираното остъкляване. H < 3500 без укрешващ тръбен профил, H < 4000 с алуминиева тръба 80 x 50 x 4, H < 4500 с алуминиева тръба 100 x 50 x 4, H < 5000 с алуминиева тръба 120 x 50 x 4 ³) Базирана на система „System NovoFire® T30” | ||||||
| Всички размери са в mm, RAM = Външен размер на рамката | ||||||
Технически данни за димозащитни врати с рамкови профили T30 (EI 30)
| Клас устойчивост | T30 (EI2 30) / F30 | |||||
| Тип | NovoFire® Alu | NovoFire® | NovoFire® | NovoFire® F30 с T30 | ||
| Елементи на дизайна | ||||||
| Наклони | - | - | - | • | ||
| Арки | - | - | - | - | ||
| Вдлъбнатини | - | - | - | - | ||
| Ъгли | - | - | - | - | ||
| Разширения | • | • | • | • | ||
| Размери |
|
|
| |||
| Зидарски отвор | широчина min. - max. | 634 - 1834* | 811 - 3312* | 1500 - 3270* | неограничен | |
височина min. - max. | 1750 - 3135* | 1915 - 3820* | 1755 - 3135* | max. 5015 ¹)²) | ||
| Външен размер на рамката | широчина min. - max. | 604 - 1804* | 781 - 3282* | 1470 - 3240* | неограничен | |
височина min. - max. | 1740 - 3120* | 1900 - 3805* | 1740 - 3120* | max. 5000 ¹)²) | ||
| Светъл отвор, когато крилото е отворено на 180° | широчина min. - max. | 454 - 1414 | 454 - 1414 | 1320 - 2850 | – | |
височина min. - max. | 1665 - 2925 | 1665 - 2616 | 1665 - 2925 | – | ||
| Крила |
|
|
| |||
| Дълбочина на монтаж | 74 | 74 | 74 | 74 | ||
| Изглед | 150 | 159 | 150 | 75 | ||
| Височина на цокъла | 98 - 238 | 98 - 238 | 98 - 238 | 75 - 225 | ||
| Профил на щурца, отделящ вратата от фикса | 98 | 98 | 98 | 98 | ||
| Залепен стъклодържач | 20 - 140 | 20 - 140 | 20 - 140 | 20 - 140 | ||
| Стена | ||||||
| Зидария | ≥ 115 | ≥ 115 | ≥ 115 | ≥ 115 | ||
| Бетон | ≥ 100 | ≥ 100 | ≥ 100 | ≥ 100 | ||
| Газобетонни блокове или тухли | ≥ 175 | ≥ 175 | ≥ 175 | ≥ 175 | ||
| Газобетонни плочи | ≥ 150 | ≥ 150 | ≥ 150 | ≥ 150 | ||
| Щендерни стени от ригели или стоманени щендери | ≥ 95 | ≥ 95 | ≥ 95 | ≥ 95 | ||
| Щендерни стени от ригели или дървени щендери |
|
|
|
| ||
| Облицован и необлицована стоманена конструкция | • | • | • | • | ||
| Облицована дървена конструкция | • | • | • | • | ||
| Комбинация врати / остъкления | • | • | • | • | ||
| Z-каса | - | - | - | - | ||
| Пълнежи | ||||||
| Contraflam 30 - 1 / Contraflam 30 - V6 (Contraflam 30 - V22) / Contraflam 30 - V24 (Contraflam 30 - V26) / Contraflam 30 IGU max. ширина x височина | 1302 x 2782 | 2200 x 1400 | ||||
| Pyrostop тип 30 - 1 / Pyrostop тип 30 - 10 / Pyrostop тип 30 - 2 / Pyrostop тип 30 - 20 / +P2A, P4A, P6B / Pyrostop 30 - 1.Iso / Pyrostop 30 - 2.Iso max. ширина x височина | 1400 x 2577 | 2929 x 924 | ||||
| Promaglas 30, тип 1 / Promaglas 30, тип 2 / Promaglas 30, тип 20 | 1302 x 2782 | 1302 x 2782 | ||||
| Панели | • | • | • | • | ||
| Стъкло / панел | • | • | • | • | ||
| Стъкло | Мокро стъкло | • | • | • | • | |
Сухо стъкло | • | • | • | • | ||
| Варианти на дизайна | ||||||
| с горен и страничен фикс | • | • | • | • | ||
| с горен фикс | • | • | • | • | ||
| със страничен фиц | • | • | • | • | ||
| Димозащита съгласно DIN 18095 и DIN EN 1634 - част 3 (в комбинация с DIN 4102) | • | • | • | • | ||
| Звукоизолация макс. Rw,P (Rw,R) | 40 (35) | - | 40 (35) | - | ||
| Устойчивовост на взлом ³) | WK 1-3 | WK 1-3 | - | - | ||
| Топлопроводимост Uf | - | - | - | - | ||
| Сертификат за изпитване | Z-6.20-1845 | Z-6.20-1845 | Z-6.20-1845 | Z-19.14-1769 | ||
| Изпитан в съответствие с | DIN 4102 и DIN EN 1634 | |||||
| • възможно – не е възможно * вкл. 120 мм по-широка рамка на вратата от лявата, дясната страна и отгоре ¹) Спрямо изискванията за структурна стабилност ²) Монтаж на врата RS-1 или RS-2 врата във фиксираното остъкление: Препоръчваме укрепваща тръба от лявата и дясната страна на рамковия профил на фиксираното остъкляване. H ≤ 3500 без укрепващ тръбен профил, H ≤ 4000 с алуминиева тръба 80 x 50 x 4, H ≤ 4500 с алуминиева тръба 100 x 50 x 4, H ≤ 5000 с алуминиева тръба 120 x 50 x 4 ³) Базирана на система „System NovoFire® T30” | ||||||
| Всички размери са в mm, RAM = Външен размер на рамката | ||||||
Технически данни за пожарозащитни врати с ранкови профили T90 (EI 90)
| Клас устойчивост | T90 (EI2 90) / F90 | ||||||
| Тип | NovoFire® Alu | NovoFire® | NovoFire® F90 с T90 | ||||
| Елементи на дизайна | |||||||
| Наклони | - | - | • | ||||
| Арки | - | - | - | ||||
| Вдлъбнатини | - | - | - | ||||
| Ъгли | - | - | - | ||||
| Разширения | • | • | • | ||||
| Размери |
|
|
| ||||
| Зидарски отвор | ширина min. - max. | 634 - 1834* | 1500 - 2730* | неограничен | |||
височина min. - max. | 1750 - 3135* | 1750 - 2610* | max. 4015 ¹)²) | ||||
| Външен размер на рамката | ширина min. - max. | 604 - 1710* | 1470 - 2700* | неограничен | |||
височинан min. - max. | 1740 - 2600* | 1740 - 2600* | max. 4000 ¹)²) | ||||
| Светъл отвор, когато крилото е отворено на 180° | ширина min. - max. | 454 - 1320 | 1320 - 2310 | – | |||
височина min. - max. | 1665 - 2405 | 1665 - 2405 | – | ||||
| Крила |
|
|
| ||||
| Дълбочина на монтаж | 90 | 90 | 90 | ||||
| Изглед | 150 | 150 | 75 | ||||
| Височина на цокъла | 98 - 238 | 98 - 238 | 98 - 238 | ||||
| Профил на щурца, отделящ вратата от фикса | 98 | 98 | 98 | ||||
| Залепен стъклодържач | 20 - 140 | 20 - 140 | 20 - 140 | ||||
| Стена | |||||||
| Зидария | ≥ 175 | ≥ 175 | ≥ 175 | ||||
| Бетон | ≥ 140 | ≥ 140 | ≥ 140 | ||||
| Газобетонни блокове или тухли | ≥ 200 | ≥ 200 | ≥ 200 | ||||
| Газобетонни плочи | ≥ 175 | ≥ 175 | ≥ 175 | ||||
| Щендерни стени от ригели или стоманени щендери | ≥ 100 | ≥ 100 | ≥ 100 | ||||
| Щендерни стени от ригели или дървени щендери | - | - | - | ||||
| Облицован и необлицована стоманена конструкция | • | • | • | ||||
| Облицована дървена конструкция | - | - | - | ||||
| Комбинация врати / остъкления | • | • | • | ||||
| Z-каса | - | - | - | ||||
| Пълнежи | |||||||
| Contraflam 90 | ширина x височина max. | 1208 x 2261 | 1208 x 2261 | ||||
| Горен фикс | 2347 x 939 |
1400 x 2400
1400 x 2400
1400 x 2400 | |||||
| Страничен фикс | 939 x 2413 | ||||||
| Pyrostop тип 90-1 | ширина x височина | 1208 x ≤ 2261 | 1208 x 2261 | ||||
| Обща площ | ≤ 2,44 m² | ≤ 2,44 m² | |||||
| Горен фикс | 2347 x 939 |
| |||||
| Страничен фикс | 939 x 2413 |
| |||||
| Pyrostop тип 90-2 | ширина x височина | 1208 x ≤ 2261 | 1208 x 2261 | ||||
| Обща площ | ≤ 2,44 m² | ≤ 2,44 m² | |||||
| Горен фикс | 2347 x 939 | ||||||
| Страничен фикс | 939 x 2413 | ||||||
| Панел | • | • | • | ||||
| Стъкло / панел | • | • | • | ||||
| Стъкло | Мокро стъкло | • | • | • | |||
Сухо стъкло | • | • | • | ||||
| Варианти на дизайна | |||||||
| с горен и страничен фикс | • | • | • | ||||
| с горен фикс | • | • | • | ||||
| със страничен фикс | • | • | • | ||||
| Димозащита съгласно DIN 18095 и DIN EN 1634 - част 3 (в комбинация с DIN 4102) | • | • | • | ||||
| Звукоизолация макс. Rw,P (Rw,R) | 42 (37) | 42 (37) | - | ||||
| Устойчивост на взлом ³) | WK 1-3 | WK 1-3 | - | ||||
| Топлопроводимост Uf | - | - | - | ||||
| Сертификат за изпитване | Z-6.20-1845 | Z-6.20-1836 | Z-19.14-1771 | ||||
| Изпитан в съответствие с | DIN 4102 и DIN EN 1634 | ||||||
| • възможно – не е възможно * вкл. 120 мм по-широка рамка на вратата от лявата, дясната страна и отгоре ¹) Спрямо изискванията за структурна стабилност ²) Монтаж на врата RS-1 или врата RS-2 във фиксираното остъкление: Препоръчваме укрепваща тръба от лявата и дясната страна на рамковия профил на фиксираното остъкляване. H ≤ 3500 без укрешващ тръбен профил, H ≤ 4000 с алуминиева тръба 80 x 50 x 4, H ≤ 4500 с алуминиева тръба 100 x 50 x 4, H ≤ 5000 с алуминиева тръба 120 x 50 x 4 | |||||||
| Всички размери са в mm, RAM = Външен размер на рамката | |||||||
Технически данни за врати с рамкови профили с клас за сигурност RC 2 / RC 3
| Клас устойчивост на взлом | RC 2 | RC 3 | ||||
| Тип | NovoFire® T30 | NovoFire® T30 | NovoFire® T30 | |||
| Размери | Зидарски отвор | ширина min. - max. | 1080 – 1485 | 1080 – 1485 | 1840 – 2530 | |
| височина min. - max. | 1840 – 2530 | 1840 – 2530 | 1840 – 2530 | |||
| Рамка | Дълбочина на монтаж | 74 | 74 | 74 | ||
| Видима ширина на рамковия профил | 75 | 75 | 75 | |||
| Стена (дебелина без мазилка) | Зидария/открита тухлена зидария (якост на тухлите 12/ II-ра група хоросан) | ≥ 115 | ≥ 115 | ≥ 115 | ||
| Бетон(B15) | ≥ 100 | ≥ 120 | ≥ 120 | |||
| Газобетон (якост на натиск≥ 4/ залепен) | ≥ 170 | ≥ 240 | ≥ 240 | |||
| Облицован стоманен елемент min. F60-A | • | • | • | |||
| Пълнежи | Защитно стъкло F30 | P4A дебелина ≥ 21 | P5A дебелина ≥ 21 | P5A дебелина ≥ 21 | ||
- | P6B дебелина ≥ 21 | P6B дебелина ≥ 21 | ||||
| Защитен панел F30 | 2x стоманена ламарина, пожароустойчива сърцевина/ дебелина ≥ 33 | 2x стоманена ламарина, пожароустойчива сърцевина/ дебелина ≥ 33 | 2x стоманена ламарина, пожароустойчива сърцевина/ дебелина ≥ 33 | |||
| Оборудване за сигурност | Брой осигурителни шипове | 3 | 3 | 3 | ||
| Едноточкова брава с пружинен болт с горно заключване | - | - | - | |||
| Едноточкова брава с горно заключване | • | - | - | |||
| Многоточково заключване | - | • | • | |||
| Многоточково заключване с ел. насрещник | - | • | • | |||
| Ел. насрещник 1) | - | - | - | |||
| Защитни заключващи патрони съгласно EN 1303 клас 4 или DIN 18252 клас21, 31, 71 BZ | Дължината на заключващия патрон е: дебелината на крилото на вратата 74 mm + дебелината на защитния обков, заключващият патрон не трябва да стърчи повече от 3 mm извън плочата на вратата | |||||
| Комплект дръжки, DIN 18257/ ES 1 дълъг шилд | • | - | - | |||
| Комплект дръжка-топка, DIN 18257/ ES 1 дълъг шилд | • | - | - | |||
| Комплект дръжки, DIN 18257/ ES 3 дълъг шилд | • | • | • | |||
| Комплект дръжка-топка, DIN 18257/ ES 3 дълъг шилд | • | • | • | |||
| Паник функция съгласно EN 179 | • | - | - | |||
| Паник функция съгласно EN 1125 с лост за натискане (Touchbar) | • | - | - | |||
| Паник функция съгласно EN 1125 с лост за бутане (Pushbar) | - | - | - | |||
| Паник функция B (Алтернативна функция - комплект дръжки) | • | - | - | |||
| Паник функция D (Транзитна функция - комплект дръжки) | • | - | - | |||
| Паник функция E (Превключваща функция - комплект дръжка-топка) | • | - | - | |||
| Ролкови панти | - | - | - | |||
| 2-съставни 3D винтови панти със заключване в пантата | • | • | • | |||
| Скрити панти | - | - | - | |||
| Магнитен контакт | • | • | • | |||
| Ригел контакт | • | • | • | |||
| Горен автомат | • | • | • | |||
| Скрит автомат | - | - | - | |||
| Праг, необходим за паник функция | Не 2) | Не 2) | Не 2) | |||
| Остъкление | Сухо стъкло | • | • | • | ||
| Мокро стъкло | - | - | - | |||
| Стъклодържачи, закрепени със скоби или клипсове | • | • | • | |||
| Стъклодържачи, завинтени | - | - | - | |||
| Допълнителни функции | Огнеустойчивост | T30-1 | T30-1 | T30-2 | ||
| Димоустойчивост | • | • | • | |||
| Звукоизолация в зависимост от оборудването до (Rw) | до 40 dB | до 40 dB | до 40 dB | |||
| Изпитани съгласно | DIN EN 1627 | |||||
• възможно – не е възможно 1) Не се разрешава използването на ел. насрещник в комбинация с основната брава. 2) В комбинация с паник лост (Touchbar), не се изисква праг. | ||||||
| Клас устойчивост | Термоизолирани външни системи от рамкови профили | ||||
| Тип | 1-крила врата | 2-крила врата | Термоизолирано остъкление | ||
| Елементи на дизайна | |||||
| Наклони | - | - | • | ||
| Арки | - | - | • | ||
| Вдлъбнатини | - | - | - | ||
| Ъгли | - | - | • | ||
| Разширения | • | • | • | ||
| Размери |
|
|
| ||
| Зидарски отвор | ширина min. – max. | 625 - 1450 | 1500 - 2400 | неограничен | |
височина min. - max. |
| 1750 - 2505 | 1750 - 2400 | 5000 ¹) | |
| Външен размер на рамката | ширина min. - max. |
| 605 - 1425 | 1470 - 2395 | неограничен |
височина min. - max. |
| 1740 - 2495 | 1740 - 2385 | 5000 ¹) | |
| Светъл отвор, когато крилото е отворено на 180° | ширина min. - max. |
| 461 - 1281 | 1322 - 2247 | – |
височина min. - max. |
| 166 - 2417 | 1668 - 2313 | – | |
| Крила |
|
|
| ||
| Дълбочина на монтаж | 75 | 75 | 75 | ||
| Изглед | 149 | 149 | 74 | ||
| Височина на цокъла | 152 | 152 | 176 | ||
| Профил на щурца, отделящ вратата от фикса | 76 - 96 | 76 - 96 | 76 - 96 | ||
| Залепен стъклодържач | 20 - 140 | 20 - 140 | 20 - 140 | ||
| Стена | |||||
| Зидария | • | • | • | ||
| Бетон | • | • | • | ||
| Газобетонни блокове или тухли | • | • | • | ||
| Газобетонни плочи | • | • | • | ||
| Щендерни стени | • | • | • | ||
| от стоманени щендери | • | • | • | ||
| от дървени щендери | • | • | • | ||
| Комбинация врати / остъкления | • | • | • | ||
| Z-каса | - | - | - | ||
| Пълнежи | |||||
| Дебелина на остъклението4) | 24-52 mm | ||||
| Панел | • | • | • | ||
| Стъкло / панел | • | • | • | ||
| Стъкло | Мокро стъкло | • | • | • | |
Сухо стъкло | • | • | • | ||
| Варианти на дизайна | |||||
| с горен или страничен фикс | • | • | • | ||
| с горен фикс | • | • | • | ||
| със страничен фикс | • | • | • | ||
| Устойчивост на пропускливост на фугите клас | 4 | 4 | 4 | ||
| Устойчивост на силен дъжд клас | bis 6 A | bis 6 A | - | ||
| Звукоизолация |
| 40 dB | 40 dB | 40 dB | |
| Устойчивовост на взлом | WK 2 | WK 2 | - | ||
| Топлопроводимост Uf | 1,3 - 1,9 W/m²K | 1,3 - 1,9 W/m²K | 1,3 - 1,9 W/m²K | ||
| CE маркировка съгласно EN 14351-1 | • | • | • | ||
| Изпитан в съответствие с | DIN 4102 и DIN EN 1634 | ||||
• възможно - не е възможно ¹) Спрямо изискванията за структурна стабилност ²) Без фасада, без прозорци с възможност за накланяне и завъртане ³) Предлагат се и други размери 4) Предлагат се всички стандартни видове стъкла | |||||
| Всички размери са в mm, RAM = Външен размер на рамката | |||||
Монтаж
ЛЕСЕН МОНТАЖ И БЪРЗО ЗАПЪЛВАНЕ НА КАСАТА
Следва видеоклип, в който стъпка по стъпка се показва как да монтирате врата от рамкови профилиNovoferm и възможностите за обратно запълване на касата с пожарозащитна пяна Novoferm. Видеоклиповете и информацията са предназначени само като допълнение към инструкциите за монтаж, експлоатация и поддръжка. Те не заместват професионалния монтаж от квалифициран и обучен монтажен екип.
МОНТАЖ НА ВРАТИ ОТ РАМКОВИ ПРОФИЛИ NOVOFERM
В това видео Novoferm демонстрира монтаж на врата от рамкови профили NovoFire® Alu T30, като визуализира подробно отделните стъпки на монтажа.
Други видеа са налични в YouTube канала на Novoferm:
https://www.youtube.com/NovofermVideos
Предварителен заводски монтаж и доставка
Противопожарна пяна Novoferm
БЪРЗ МОНТАЖ НА ВРАТИТЕ С ПРОТИВОПОЖАРНА ПЯНА NOVOFERM
С противопожарната пяна Novoferm профилите и касите в металните конструкции и конструкциите от гипсокартон могат да се запълват много по-бързо и чисто. Обичайните предварителни познания за монтаж на противопожарни врати са напълно достатъчни. Документирането на съответстващия на изискванията за одобрение монтаж е изключително лесно. За тази цел върху кутията с пяна има лесно свалящи се самозалепващи се етикети 1, които просто се залепват върху потвърждението за съответствие 2 и съдържат цялата необходима информация.
Днес няма по-лесен, по-чист и по-бърз начин за монтиране на противопожарни врати.