Системи за плъзгащи се врати NovoSlide Wall

за дървени и стъклени врати

Максимално разнообразни от дизайни с най-съвременната релсова технология за най-високите изисквания
Нарастващото желание за оптимизирано използване на пространството, но също така и за по-ефективен и по-комфортен начин на живот, в съчетание с тенденцията за изчистена естетика, стават все по-очевидни. Към това се прибавят нарастващите наеми, маломерните апартаменти и нарастващата нужда от свободно и гъвкаво жилищно пространство. 

Изберете системите за плъзгащи се врати NovoSlide Wall, за да оптимизирате начина за използване на пространството във вашия дом

Видове системи за плъзгащи се врати

NovoSlide Wall - разположена пред стената система за плъзгащи се врати

NovoSlide Pocket - вградена в стената система за плъзгащи се врати, като стенна кутия 

NovoSlide Frame - разположена пред стената система от плъзгащи се врати, с вградена стоманена каса. 

АКЦЕНТИ И ХАРАКТЕРИСТИКИ

Детайли за NovoSlide Pocket

Детайли за NovoSlide Pocket

ВГРАДЕНА В СТЕНАТА СИСТЕМА ЗА ПЛЪЗГАЩИ СЕ ВРАТИ

Системата за плъзгащи се врати NovoSlide Pocket се монтира безпроблемно в отвора на стената. Състояща се от изработена по мярка метална кутия, здрава алуминиева релса с комплект обков за дървени или изцяло стъклени врати за поставяне на място и опция за стоманена рамка, тя дава максимална свобода за създаване на оригинални разпределения на помещенията. По този начин NovoSlide Pocket се вписва отлично както в частните домове, така и в търговски сгради.
Системата за плъзгащи се врати е предназначена за монтаж в гипсокартонени стени и се предлага със стандартни ширини на крилото от 610 мм до 1235 мм.

Специални размери са налични по запитване.

ПРЕДИМСТВА ПРИ МОНТАЖА

  • бърз монтаж благодарение на малкото компоненти
  • включени пълен комплект монтажни аксесоари
  • включително необходимите винтове за гипсокартон, предоставени от клиента
  • лесно транспортиране до и на строителната площадка, благодарение на практичната картонена опаковка на разглобената система за транспортиране
  • реверсивна релса и врата
  • регулируема позиция на паркиране след монтиране на крилото на вратата
  • метрова маркировка за опростен монтаж
  • изравняване на височината с помощта на допълнителни регулируеми крачета
  • предлага се и като фабрично сглобен елемент

МАКСИМАЛНО УЛЕСНЕНА УПОТРЕБА

  • плъзгащ се амортисьор от двете страни до 80 kg тегло на крилото на вратата
  • не са необходими крайни ограничители, амортисьорът паркира вратата внимателно
  • много тиха работа благодарение на ролковата система със сачмени лагери
  • дървени или стъклени врати и обков по ваш избор за монтаж на място
      

ОПЦИЯ

  • със стоманена каса или безкасова версия за гипсокартон от Novoferm или дървена каса за монтаж на място
  • модерно магнитно плаващо задвижване, управляемо чрез сензорно отваряне, безконтактен сензорен ключ, радарен детектор или приложение.
Детайли за NovoSlide Wall

Детайли за NovoSlide Wall

РАЗПОЛОЖЕНА ПРЕД СТЕНАТА СИСТЕМА ЗА ПЛЪЗГАЩИ СЕ ВРАТИ

Решението за плъзгащи се врати NovoSlide Wall впечатлява с максимално лесната си употреба и атрактивен дизайн.

ПРЕДИМСТВА ПРИ МОНТАЖА

  • компенсация на интегрираните в релсата рамка и первази
  • изключително стабилна конструкция на релсата благодарение на оптимизираните профили
  • лесен стенен монтаж благодарение на предварително пробития алуминиев профил (стъпаловидно пробити отвори)
  • много лесен монтаж на блендата благодарение на „клипс" технологията
  • вкл. пълен комплект монтажни аксесоари за монтиране на крилото на вратата върху релсата, напр. монтажни елементи със скоби за стъклените врати

МАКСИМАЛНО УЛЕСНЕНА УПОТРЕБА

  • плъзгащ се амортисьор от двете страни до 80 kg тегло на крилото на вратата
  • не са необходими крайни ограничители, амортисьорът паркира вратата внимателно и от двете страни
  • много тиха работа благодарение на ролковата система със сачмени лагери
  • вкл. подов водач Deluxe с алуминиев профил и пластмасов ролков водач със сачмени лагери за изключително плавно движение и пластмасов водач
  • модерно магнитно плаващо задвижване, управляемо чрез сензорно отваряне, безконтактен сензорен ключ, радарен детектор или приложение.

ГОЛЯМО РАЗНООБРАЗИЕ ОТ ДИЗАЙНИ

  • дървени или стъклени врати и обков по ваш избор за монтаж на място
  • върху плътни или гипсокартонени стени
  • възможни ширини на крилата на вратите от 580 мм
  • макс. дължина на релсата 5800 мм

УНИВЕРСАЛНО ПРИЛОЖЕНИЕ

  • за частни домове или търговски сгради
  • за обновяване или ново строителство
  • плъзгащите се врати за съвременните етажни разпределения дават възможност за маневриране, спестяват ценно място и осигуряват пространство
Детайли за NovoSlide Frame

Детайли за NovoSlide Frame

РАЗПОЛОЖЕНА ПРЕД СТЕНАТА СИСТЕМА ЗА ПЛЪЗГАЩИ СЕ ВРАТИ, С ВГРАДЕНА СТОМАНЕНА КАСА

Системата за плъзгащи се врати NovoSlide Frame с вградена стоманена каса и профил за страничен достъп е идеално проектирана за решения, свързани с тежки условия на работа и висока натовареност.

ГОЛЯМО РАЗНООБРАЗИЕ ОТ ДИЗАЙНИ

  • дървени или стъклени врати и обков по ваш избор за монтаж на място
  • върху плътни или гипсокартонени стени
  • възможни ширини на крилата на вратите от 580 мм
  • макс. дължина на релсата 5800 мм
  • Обхватна каса със ограничителен панел, еднокомпонентна за масивни стени или вграждане в стена от гипсокартон или двукомпонентна при модернизация и монтаж в гипсокартонени стени или зидария
  • възможни са различни варианти, напр. с горен фикс или страничен панел
  • като решение за двукрили плъзгащи се врати
  • различна форма на профила на касата по отношение на радиуса и жлеба от противоположната страна на крилото на вратата 
  • плъзгащ се амортисьор от двете страни до 80 kg тегло на крилото на вратата
  • като опция се предлага и с висококачествен релсов път за врати с тегло > 100 kg със съответния плъзгащ амортисьор

Поради тази причина системата е изключително подходяща за употреба, например в

  • стаи за пациенти в болници и клиники или старчески домове
  • лекарски кабинети
  • студентски общежития
  • сгради на публичната администрация
  • хотели и ресторанти
  • но, също така, и за частни жилищни сгради

ПРЕДИМСТВА ПРИ МОНТАЖА

  • ходовата релса може да се преустройва
  • фабрично подготвотвен отвор за закрепване към стената на кутията за ходовата релса
  • ходовата релса се доставя в разглобено състояние за бърз монтаж на място
Магнитно задвижване за плъзгащи се врати Rapid

Магнитно задвижване за плъзгащи се врати Rapid

NOVOSLIDE WALL RAPID

  • по избор - за стенен или таванен монтаж
  • изобразена: зидария с дървено крило
  • за дървени крила винаги с подови водачи със сачмени лагери и вграден монтаж

NOVOSLIDE POCKET RAPID

  • с двукомпонентна стоманена каса, заварена или разглобена, поцинкована и грундирана, или по желание монтирана в отвора на стената от гипсокартон (показана тук), ширината на отвора е скосена за изцяло стъклените крила на вратите
  • възможност за дървена каса на вратата за монтаж на място
  • изобразена: конструкция от гипсокартон с дървено крило на вратата

NOVOSLIDE FRAME RAPID

  • с ъглова каса или с едно- или двукомпонентна обхватна каса, поцинкована и грундирана
  • възможни са различни варианти
  • изобразена: зидария с дървено крило, еднокомпонентна обхватна каса

ТЕХНИЧЕСКИ ДАННИ И ДЕТАЙЛИ

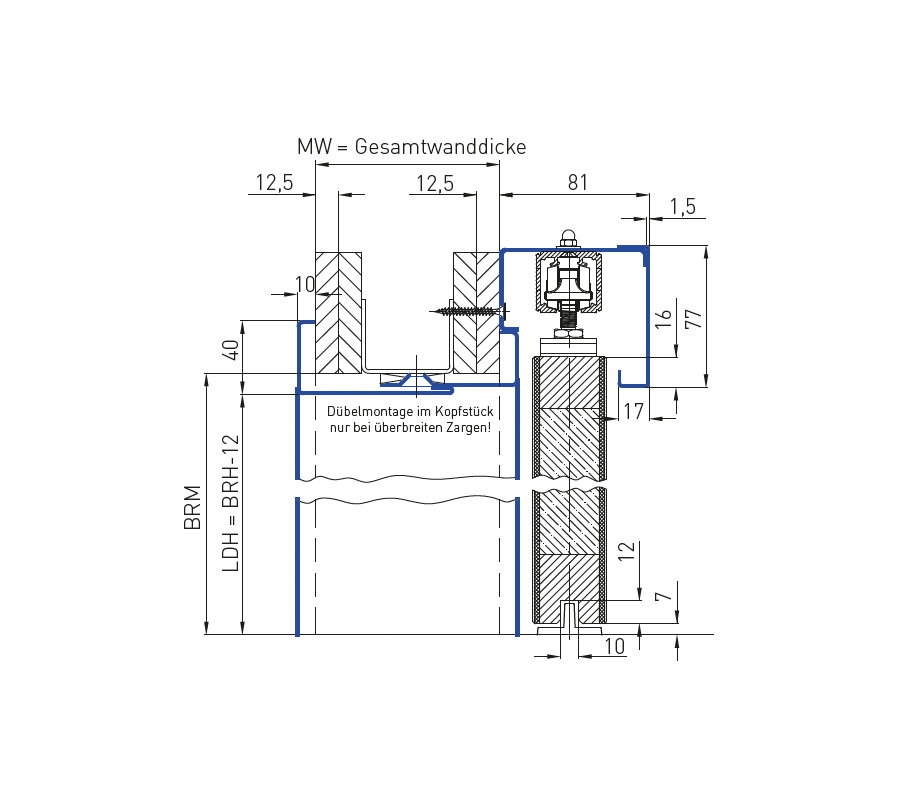
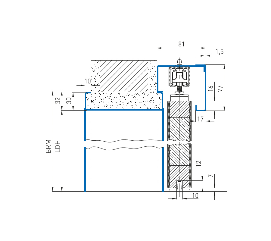
ТЕХНИЧЕСКИ ДАННИ ЗА NOVOSLIDE POCKET

ТЕХНИЧЕСКИ ДАННИ ЗА NOVOSLIDE POCKET

NOVOSLIDE POCKET

Системата плъзгащи се врати NovoSlide Pocket съдържа всички компоненти, необходими за монтиране на вградена в стената плъзгаща се врата.

  • по избор за дървени или стъклени врати
  • по избор като версия от комплект, опакован в картонена кутия, / или предварително сглобени монтажни елементи (по заявка)

Носещият елемент за една врата включва:
1 x системен елемент / предварително сглобен по размер
1 x реверсивен релсов профил
1 x подов водач за дървено или стъклено крило
1 x ролкови колички с двойни ролки със съчмени лагери за двустранно демпфиране
1 x ролкови колички с двойни ролки със съчмени лагери за с вградена почистваща четка
1 x монтажен комплект за дървено или стъклено крило
1 x комплект винтове за монтаж на елемента
1 x комплект винтове за монтаж на гипсокартонени плоскости
1 x помощни средства за монтаж на плоскостите
1 x инструкции за монтаж

Налични размери на крилата на вратите

Ширина 610 / 735 / 860 / 985 / 1 110 / 1 235 мм
Височина 1,985 / 2,110 / 2,235 мм
 

За готова стена с дебелина 125 мм / 150 мм при сухо строителство.

Комплектът ролки винаги включва двустранно демпфериране до тегло на крилото на вратата 80 kg за ширина на крилото на вратата от 610 mm. Позицията за паркиране на вратата се постига чрез просто позициониране на активиращите елементи в ходовата част и може да се монтира и допълнително. Вградените обозначения върху всички надлъжни профили улесняват настройката спрямо готовия под.

Изравняване на височината с помощта на допълнителни регулируеми крачета. Дебелини на крилото на вратата за дървени врати до 40 мм, за стъклени врати по избор 8 мм или 10 мм.

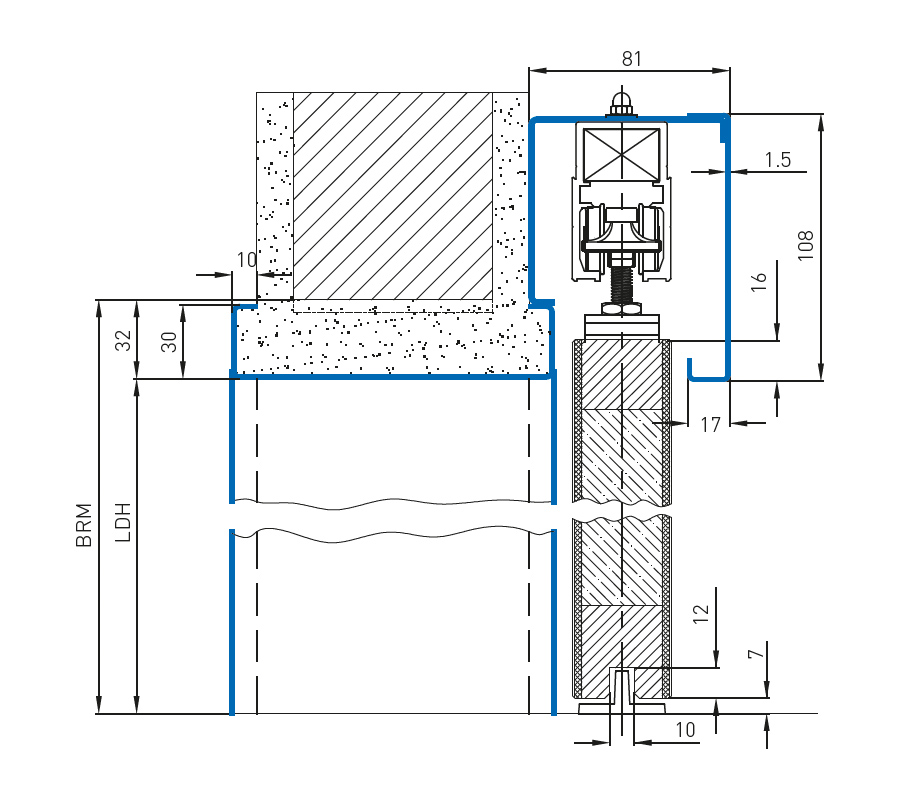
Хоризонтално сечение: NovoSlide Pocket със стоманена каса Novoferm (горната част на илюстрация) или алтернативно с гипсокартонени панели (долната част на илюстрация); възможно е и изпълнение с дървена каса (за монтаж на място)

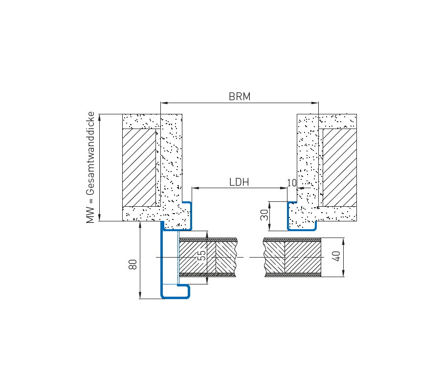
NovoSlide Pocket, разположение на профилите; TBH = височина на крилото на вратата, TBB = ширина на крилото на вратата, MB = монтажна ширина

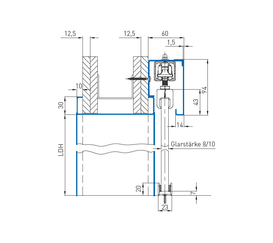
Вертикално сечение: NovoSlide Pocket, с GK - водач

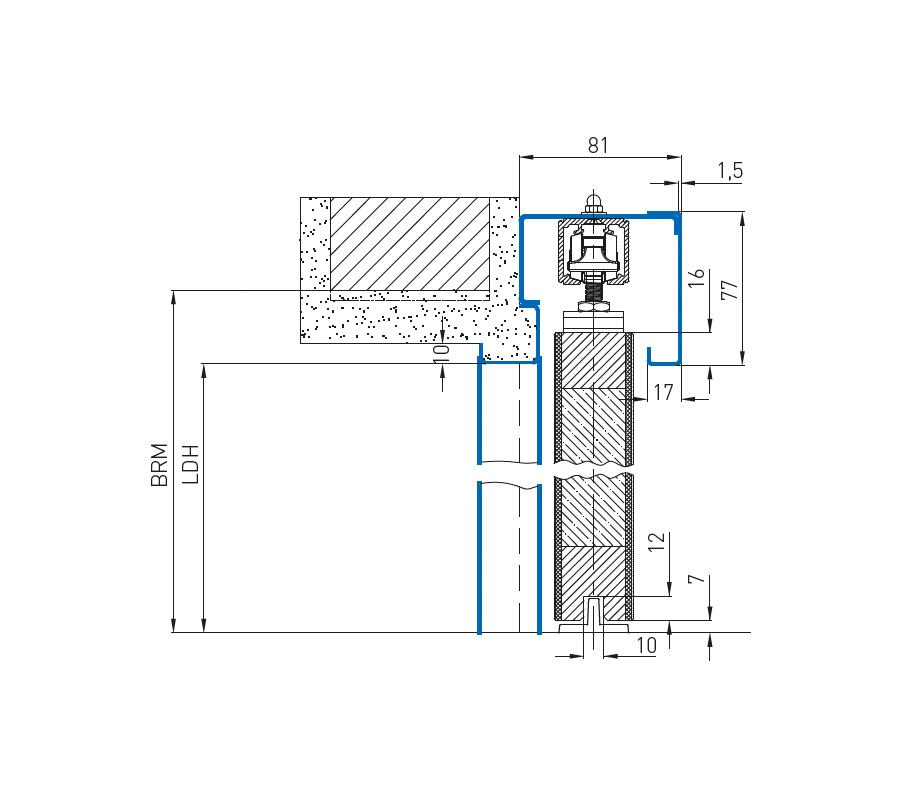
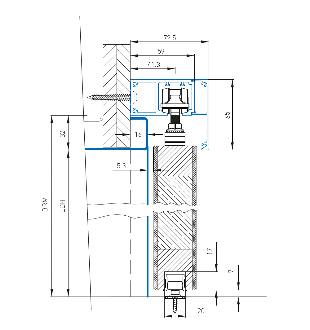
ТЕХНИЧЕСКИ ДАННИ ЗА NOVOSLIDE WALL

ТЕХНИЧЕСКИ ДАННИ ЗА NOVOSLIDE WALL

NOVOSLIDE WALL

Системата за плъзгащи се врати NovoSlide Wall съдържа всички компоненти, необходими за монтиране на плъзгаща се врата пред стената, включително релсовия път и покриващия панел, както и комплект ролки с демпфериране от двете страни, за да се гарантира плавното затваряне на вратата.

Носещият елемент за една врата включва
1 x релсов профил вкл. куха камера за отвора в стената
1 x подов водач за дървено или стъклено крило
1 x ролкови колички с двойни ролки със съчмени лагери за двустранно демпфиране
1 x ролкови колички с двойни ролки със съчмени лагери за с вградена почистваща четка
1 x монтажен комплект за дърво или стъкло
1 x капак на клипса от анодизиран алуминий EV1, опция и с визия от неръждаема стомана
2 x пластмасови крайни капачки
1 x дребни части и аксесоари за монтаж
1 x инструкции за монтаж
 
Формата на релсовия път включва отвора на стената използвайки 3D куха камера.

В гамата ни има профили с широчина 47 mm, 53 mm и 59 mm за изравняване на разстоянието до стената, например за первази / каси на врати / ключове или панели за интелигентен дом.

Налични дължини на профилите

2.050 / 2.500 / 3.500 / 5.800 mm

Kомплектът ролки винаги включва двустранно демпфериране до тегло на крилото на вратата 80 kg за ширина на крилото на вратата от 580 mm. Позицията за паркиране на вратата се постига чрез просто позициониране на активиращите елементи в ходовата част. Профилът е предварително пробит на разстояние 250 mm.

Дебелината на крилото при дървените врати е до 40 мм, за стъклените врати - по избор 8 мм или 10 мм.

Изискваните параметри на височината и ширината на крилото на вратата могат да се изчислят, като се използват размерите, съгласно инструкциите за монтаж.

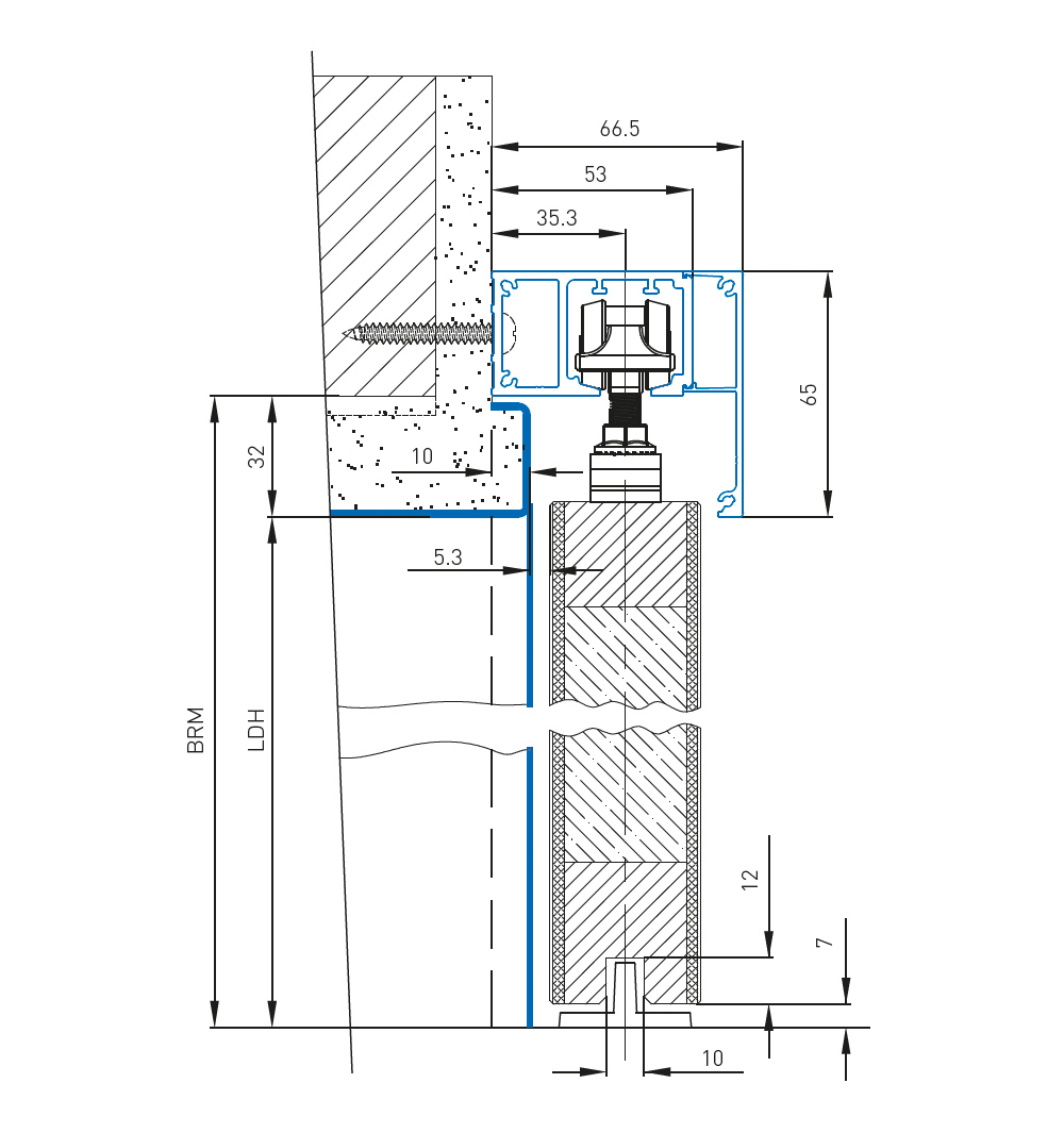
NovoSlide Wall, ширина на профила 53 mm,
Дървено крило на вратата и стоманена каса, 10 mm обхват

NovoSlide Wall, ширина на профила 47 mm,
Дървено крило на вратата и стоманена каса, 10 mm обхват

NovoSlide Wall, ширина на профила 59 mm,
Дървено крило на вратата и стоманена каса, 16 мм каса с подов водач Deluxe

NovoSlide Wall, ширина на профила 53 mm,
Изцяло стъклено крило на вратата и стоманена каса, 16 мм обхват

ТЕХНИЧЕСКИ ДАННИ ЗА NOVOSLIDE FRAME

ТЕХНИЧЕСКИ ДАННИ ЗА NOVOSLIDE FRAME

NOVOSLIDE FRAME

Системата за плъзгащи се врати NovoSlide Frame, разположена пред стената, е сглобяем елемент, състоящ се от стоманена каса със заварена релсова кутия.

  • по избор за дървени или стъклени врати
  • 1- или 2-крила 
  • 1-компонентна за монтаж покрай стената
  • 2-компонентна за модернизация

Носещият елемент за една врата включва
1 x системент елемент / предварително сглобен по размер
1 x релсов профил
1 x подов водач за дървено или стъклено крило
1 x ролкови колички с двойни ролки със съчмени лагери за двустранно демпфиране (опция)
1 x ролкови колички с двойни ролки със съчмени лагери за с вградена почистваща четка
1 x монтажен комплект за дървено или стъклено крило
1 x инструкции за монтаж
  

Налични размери на крилата на вратите

  • възможни са всички индивидуални размери
  • могат да се реализират и специални дебелини на крилото на вратата
  • за всички дебелини на стените в масивна или гипсокартонена конструкция
  • възможни са различни варианти, като например вентилационни решетки или странични панели
  • различна форма на профила на касата по отношение на радиуса и жлеба от противоположната страна на крилото на вратата

NovoSlide Frame, разположена пред стената с обхватна каса за зидария

NovoSlide Frame, разположена пред стената с обхватна каса за зидария

NovoSlide Frame, разположена пред стената, с ъглова каса за зидария

NovoSlide Frame, разположена пред стената, с ъглова каса за зидария

NovoSlide Frame, разположена пред стената със стъклена врата, с еднокомпонентна каса за монтаж на гипсокартонени стени

NovoSlide Frame, разположена пред стената със стъклена врата, с еднокомпонентна каса за монтаж на гипсокартонени стени

NovoSlide Frame, разположена пред стената, с двукомпонентна обхватна каса за монтаж в гипсокартонени стени

NovoSlide Frame, разположена пред стената, с двукомпонентна обхватна каса за допълнително монтиране в гипсокартонени стени

ТЕХНИЧЕСКИ ДАННИ ЗА ЗАДВИЖВАНЕ NOVOSLIDE RAPID

NOVOSLIDE WALL RAPID

  • по избор - за стенен или таванен монтаж
  • изобразена: зидария с дървено крило
  • за дървени крила винаги с подови водачи със сачмени лагери и вграден монтаж

NOVOSLIDE POCKET RAPID

  • с двукомпонентна стоманена каса, заварена или разглобена, поцинкована и грундирана, или по желание монтирана в отвора на стената от гипсокартон (показана тук), ширината на отвора е скосена за изцяло стъклените крила на вратите
  • възможност за дървена каса на вратата за монтаж на място
  • изобразена: конструкция от гипсокартон с дървено крило на вратата

NOVOSLIDE FRAME RAPID

  • с ъглова каса или с едно- или двукомпонентна обхватна каса, поцинкована и грундирана
  • възможни са различни варианти
  • изобразена: зидария с дървено крило, еднокомпонентна обхватна каса

ПРЕДИЗВИКАХМЕ ЛИ ИНТЕРЕСА ВИ?

Novoferm работи с широка мрежа от специализирани дистрибутори в цялата страна. Нашите упълномощени дистрибутори предлагат професионални съвети, продажби, взимане на размери, монтаж и демонтаж на гаражни врати на изгодни цени. Свържете се директно с нас и ние ще препратим вашето запитване към търговски партньор на Novoferm, който е най-близо до вас.