МНОГОЦЕЛЕВИ ВРАТИ NOVOPORTA PLANO MZ

Многофункционални врати с монтаж в една равнина със стената за още по-изтънчена архитектура

 

Многоцелевите врати NovoPorta Plano с монтаж в една равнина със стената, с безфалцов дизайн на крилата, се предлагат както за вътрешна, така и за външна употреба.

Елегантна визия
Дизайнерската многоцелева врата NovoPorta Plano подчертава изисканата архитектура. Със скрития централен делител вратата е монтирана на едно ниво с касата в стената. (При фалцова врата, от друга страна, крилото на вратата лежи върху касата).

Висока функционалност
Стоманените врати NovoPorta Plano с дизайн в една равнина със стената, се предлагат като пожароустойчиви врати (EI2 30), димозащитни врати, взломозащитни врати (RC 2), звукоизолиращи врати (до RW = 42 dB) и многоцелеви врати - за унифицирн вид на вратите в цялата сграда.

Множество предимства при монтажа
При тази серия врати можете да избирате от много бързи, лесни и чисти методи за монтаж и възможности за запълване на касата (винтов монтаж, запълване с пожарозащитна пяна, насипна минерална вата, ....).

Сравнение и характеристики на вратите

Сравнение на многоцелевите врати Novoporta Plano
Тип врата

MZ-1 Plano

MZ-2 Plano

Без фалц 

RS

Звукоизолация

RC2

RC3

RC4

Топлоизолация

За външна употреба

DIN EN 14351-1

Преглед на многоцелевите врати
Тип врата

Plano MZ-1

Plano MZ-2

1 +2 крила врата

1-крила врата

2-крила врата

Монтаж на равно със стената - налични дебелини на панела на вратата

без фалц 1,0

без фалц 1,0

Димозащита съгласно DIN 18095/ DIN EN 1634-3

Взломоустойчивост съгласно DIN EN 1627

RC 2 (WK 2)

RC 2 (WK 2)

 

Стойност на звукоизолация RWp изпитване

35 dB1)

41 dB2)

38 dB4)

33 dB1)

41 dB2)

38 dB4)

Коефициент на топлопреминаване U-стойност в W/m2K

1,5

1,6

Строителни размери в mm

min. 625 x 1750

max. 1375 x 2750

min. 1375 x 1750

max. 2750 x 2750

Детайли за NovoPorta Plano MZ-1 / MZ-2

Обков:
Стандартни трисъставни 3D регулируеми панти с плъзгащи лагери. Две панти на крило (при височина на BRM > 2500 мм - три панти), стандартно поцинковани; по желание се предлагат и в неръждаема стомана. Два осигурителни щифта за всяко крило на вратата. Сменяема PZ-брава с лицева плоча от неръждаема стомана, черна обла дръжка, комплект кръгли розети. Патрон за монтаж на място (дължина 90 мм, 45/45 мм). Включен в обхвата на доставката за външни врати е фиктивен патрон.

Допълнително за двукрили врати:
Централен разделител с уплътнение в централния фалц. Пасивно крило със заключване нагоре и надолу. 

Каси:
Стандартна ъглова каса с тристранно уплътнение, дебелина 2 mm, широчина на профила 50 mm, опция за обхватна каса, двукомпонентна обхватна каса с профил 2240B, насрещна каса и блокови каси за лицево свързване към стената.

Прагове:
Стандартни прагове A, разположени на едно ниво с пода, по избор: B3 с четиристранна рамка или C2 с долна ограничителна рамка, или уплътнителни прагове RS1 с възможност за спускане по пода (предлагат се и като RS1V със забавено спускане), двоен праг RS1 или извит праг RS2 с падащо подово уплътнение .

Повърхности:
Крилото и касата на вратата са поцинковани и грундирани (прахово боядисани) в цвят RAL 9016. Като опция крилото и касата се предлагат и прахово боядисани в цвят RAL по ваш избор.

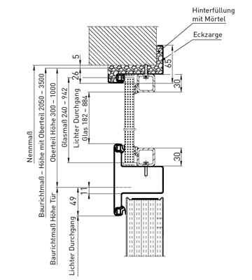
Вертикален разрез

Хоризонтален разрез, 1-крило

Вертикален разрез на остъкления фикс

Хоризонтален разрез, 2-крила 

Вертикален разрез на горния панел

ОПЦИИ:

  • Горна част - цял панел или остъклен фикс
  • ISO остъкляване - също и в специални дизайни и форми
  • Димозащита съгласно DIN 18095 с падащо долно уплътнение (RS1) или праг с надлъжно уплътнение (RS2). Еднокрили врати със стъклодържачи с автомати Novoferm NFGS 55. Двукрили елементи със стъклодържачи с горен автомат с направляващо рамо Geze TS 5000 ISM или Dorma TS 93 GSR с интегриран контрол на последователността на затваряне и вграден задвижващ болт с блокировка нагоре.
  • Звукоизолация - тествана в съответствие с DIN EN ISO 140-3, оценена в съответствие с DIN EN ISO 717-1 (лабораторна стойност за цяло крило и праг RS1 - за еднокрили елементи 35 dB RW,P, за двукрили елементи в процедурата на изпитване)
  • Устойчивост на взлом RC2 (WK2) - тествана двустранно в съответствие с DIN EN 1627 - еднокрила до BR 1375 x 2750 mm, двукрила до BR 2500 x 2500 mm

Многоцелеви стоманени врати - акценти

Това видео представя акцентите и възможностите на многоцелевите стоманени врати Novoferm накратко.

Други видеа можете да намерите в YouTube канала на Novoferm:

https://www.youtube.com/NovofermVideos

Акценти

  • Еднокрили и двукрили многоцелеви врати от стомана за вътрешна и външна употреба
  • Изпитани експлоатационни характеристики в съответствие с DIN EN 14351-1 с маркировка CE
  • Крило на вратата затварящо се наравно със стената, с дебелина 64 mm, дебелина на листа 1,0 mm
  • Висококачествена минерална вата като изолационен пълнеж
  • Поцинковани и грундирани (прахово боядисани) крило и каса на вратата в цвят, подобен на RAL 9016

Технически данни и детайли

Технически данни - Plano MZ

Технически данни - PLano MZ

Клас на устойчивост / тип

Наименование

NovoPorta Plano MZ-1

1-крила

NovoPorta Plano MZ-2

2-крила 

Одобрени размери  
Строителен размер (BRM)                                                                                                                                                                                                                 ширина min. - max.

625 – 1.375

1.375 – 2.750

                                                                                                                                                                                                                                                                  височина min. - max.

1.750 – 2.750

1.750 – 2.750

с горен панел                                                           височина max.

3.500

3.500

вкл. врата                                                                  височина max.

2.500

2.500

Димозащита с горен панел                                    BRM max.

3.500

3.500

  

 

Крило  
Дебелина на крилото

64

64

Дебелина на листа

1,0

1,0

Активно крило                                                                ширина min. – max.

-

589 – 1.353

Пасивно крило                                                               ширина min. – max.

-

525 – 1.353

Отваряемост

ляво или дясно

Активно крило
ляво или дясно

Изпълнение 

 

Топлоизолация, цяло крило, всички видове прагове
(Ud стойност на елемент на вратата W/(m2)K)

1,5
 

1,6

С остъкление

С димоуплътнение

Със звукоизолация (с падащ подов праг, без стъкло)
(Лабораторна стойност за врати с цяло крило съгласно DIN EN ISO 717-1)

прибл. 35 dB
RW,P

прибл. 35 dB
RW,P

С взломоустойчивост в съответствие с DIN EN 1627
(цяло крило; изпитано от двете страни) 2) до BRM (LD) max.

RC 2
 

RC 2
 

CE-маркировка съгласно EN 14351-1

С дизайнерска повърхност Novoferm              BMR max.      

1.250 x 2.250

2.500 x 2.250

Налично остъкляване
(сухо остъкляване с гумен профил)
 

 

Правоъгълно стандартно остъкляване с видимо винтово закрепване на стъклодържачите, стандартно поцинковани и прахово боядисани с грунд (RAL 9016), по желание се предлага и с допълнителни покривни профили (без видимо закрепване) от неръждаема стомана

Минимални ширини на фриза тристранно ≥ 150 mm, от страната на заключването и на централния разделител на пасивното крило ≥ 180 mm

Налични размери:

300 x 300
400 x 400
500 x 500

Кръгло стандартно остъкление
Дизайн на стъклодържача и минимални ширини на фриза /
ширина на фриза, като при правоъгълно стандартно остъкление.
Налични размери:
ø 350
ø 450

Специално остъкление по избор,
от 150 x 150 mm до 935 x 2134 mm (еднокрили врати)
или
849 x 2134 mm (двукрили врати).
Дизайн и стъклодържачи и минимални ширини на фриза / ширини на фриза като при стандартните правоъгълни стъклопакети

• възможно – не е възможно

Всички размери са в mm.   BRM = Строителен размер    RAM = Външен размер на касата    LD = Размер на светъл проход

  
Скиците се отнасят само за врати с размери 1 000 x 2 000 мм / цялата информация за размерите на стъклата се отнася за светлия проход на единица остъкление.  
¹) Горните панели за врати с допълнителна димозащита се предлагат само до макс. ширина BRM 1250 мм за еднокрили врати. В комбинация с димозащита са одобрени само за монтаж в плътни стени (зидария/бетон/газобетон).  

ПРЕДИЗВИКАХМЕ ЛИ ИНТЕРЕСА ВИ?

Novoferm работи с широка мрежа от специализирани дистрибутори в цялата страна. Нашите упълномощени дистрибутори предлагат професионални съвети, продажби, взимане на размери, монтаж и демонтаж на гаражни врати на изгодни цени. Свържете се директно с нас и ние ще препратим вашето запитване към търговски партньор на Novoferm, който е най-близо до вас.